Az értékesítő:
Elvit Győr
+36 20 214 3387

Eladó családi ház Győrszemere, Nagyszentpál, 89 000 000 Ft, 92 négyzetméter

89 000 000 Ft
családi ház, 92 négyzetméter
Egész szobák:
4
Komfort fokozat:
Összkomfort
Fűtés módja:
Hőszivattyú
Ingatlan állapota:
Szerkezetkész
Azonosító:
11583342
Értékesítés típusa:
eladó
Ingatlan típusa:
családi ház
Jelleg:
Családi ház
Település:
Győrszemere
Alapterület:
92
Telekterület:
812
Ár:
89 000 000 Ft
Fűtés jellege:
Geotermikus
Elhelyezkedés:
Udvari
Kor:
Új építésű
Terasz:
Van
Beépíthető tetőtér:
Nincs
Padlás:
Van
Melléképület:
Nincs
Pince:
Nincs
Klíma:
Van
Bútorozott:
Nem bútorozott
Telekterület típusa:
négyzetméter
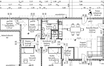
Rövidesen birtokba veheti új otthonát Győrszemere Nagyszentpálon Madárcsicsergésre szeretne ébredni? Nézze meg új otthonát! AZ ÁR KULCSRA-KÉSZ ÁLLAPOTRA ÉRTENDŐ! Kezdődhetnek a beltéri munkák! Burkolás, festés, beltéri ajtók beállítása!!! Alakítsa a belső tereket igényei szerint és máris költözhet! Győrszemere Nagyszentpálon, új építésű környezetben eladó ez az új építésű, ikerház jellegű otthon. Az ingatlanok egymás mellett helyezkednek el, önálló családi házként működnek, nincs egymáson átjárkálás. A két ingatlan teljesen elkülönül egymástól. Közös faluk nincs, a gépkocsibeállók hátsó oldala képezi az összeköttetést. A beton elemekből készült kerítés 3 oldalról elkészült. A teljes telek: 1600 nm, a saját 812 nm. ÉPÜLET: modern technológiával készült, elemekből, 10 cm külső szigeteléssel, a födémen 30 cm. RENDKÍVÜL KEDVEZŐ HŐTECHNIKA TULAJDONSÁGOKKAL, A+ ENERGETIKA BESOROLÁSSAL rendelkezik. TETŐ:antracit színű cserép. FŰTÉS: hűtő-fűtő klímák helyiségenként, (levegő-levegő hőszivattyú) a fürdőszobában és a konyha –étkezőben elektromos padlófűtéssel, mely termosztáttal szabályozható. MELEGVÍZ ELLÁTÁS: hőszivattyús villanybojler Jelenleg a jobb oldali ingatlant ajánlom Önöknek, mely kulcsra-kész állapotban kerül átadásra. A burkolatokat, nyílászárókat Önök választhatják! Ne habozzanak, nehogy lemaradjanak erről a remek lehetőségről! Saját telek mérete: 812 nm. N 92 nm+ terasz! ELOSZTÁSA: nappali-étkező-konyha, 3 szoba, háztartási helyiség, gardrób szoba, fürdőszoba, külön WC. Igyekezzen! Kulcsra kész befejezés rövid határidővel! Nagyszentpál Győrből 10 perc alatt elérhető a gyorsforgalmi úton! Személyre szabott, bank-semleges hitel-tanácsadással várom Ügyfeleimet. Vajda Zsuzsa +362021433887
https://ingatlanok.hu/elado/haz/gyorszemere/89-millio-ft;92-negyzetmeter;4-szoba;geotermikus-futes/11583342